Kuvituskuvan talo sisältää lisävalintoja

Dahlia
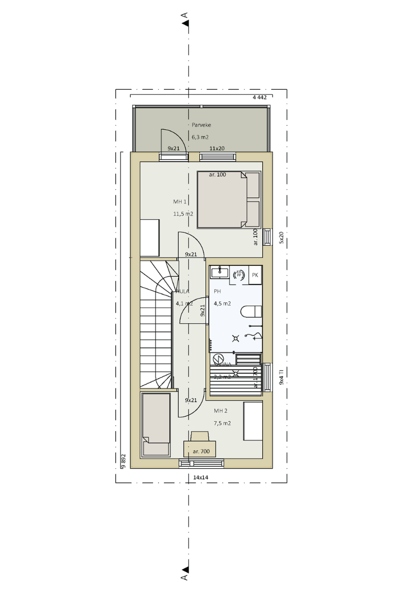
3h, keittiö, kph, sauna
Huoneistoala: 64 m²
(1.krs: 32,5 m², 2.krs: 31,6 m²)
Kerrosala: 81 m²
Dahlia on saumaton talomalli ja se kuuluu NopsaKoti-mallistoomme. Se on täydellinen valinta pienelle perheelle tai pariskunnalle. Tarvittaessa kahdesta Dahliasta saa helposti muodostettua myös paritalon. Kodin pohjaratkaisu tarjoaa kaksi makuuhuonetta, yhtenäisen keittiö-ruokailutila-olohuonekokonaisuuden sekä kaksi kylpytilaa, joissa molemmissa on wc. Lisäksi oma sauna kutsuu rentoutumaan ja tuo arkeen ripauksen ylellisyyttä.
Toimitus muuttovalmiina.
TALOMALLIN HINTA
Muuttovalmiina alkaen 169 500 €
Hinta sisältää maalämmön sekä maaviileän.
Hintaan ei sisälly toimituskulut.
Kysy lisää!
Jokainen pohjakuva voidaan toteuttaa peilikuvana. Tutustu lisää talomalliemme muokattavuuteen täällä.

Harjakatto
Harjakatto kuuluu Muurametalojen talotoimitukseen vakiona kaikissa malleissamme. Lisävalintana on mahdollista ottaa talopakettiin joko murrettu harjakatto, epäsymmetrinen harjakatto tai pulpettikatto. Lisävalintaiset katot ovat saatavilla vain yhden kerroksen taloihin.
Tähän talomalliin on saatavilla useita erilaisia julkisivuverhoiluja ja lämmönlähteeksi voit valita esimerkiksi maalämmön tai poistoilmalämpöpumpun. Terassin ja tulisijan sijainti on myös vapaasti valittavissa oman toiveesi mukaan. Tutustu lisää talomalliemme yksilöinti- ja muokkausmahdollisuuksiin talomallien muokattavuus ja lisävalinnat osiostamme!
Muuttovalmiin kodin sisustuksessa, pintamateriaaleissa ja kiintokalusteissa vaihtoehtoja on myöskin runsaasti tarjolla. Sisustussuunnittelijamme palvelut sisustuspalavereineen kuuluvat muuttovalmiin kodin hintaamme, joten saat varmasti talon sisustuksesta itsesi näköisen.
Lattiamateriaaleihin, keittiön suunnitteluun ja moneen muuhun asiaan voit perehtyä tarkemmin talopaketin sisustus-osiossamme!
RAKENNETAAN YHDESSÄ SINULLE SOPIVA KOKONAISUUS!
Alue-edustajamme auttavat sinua kokonaisuuden rakentamisessa. Tapaamisen jälkeen sinulla on tiedossa tarkka hinta talopaketille sekä budjettilaskelma koko rakennusprojektille. Jätä yhteydenottopyyntö, niin olemme sinuun yhteydessä.



