Kuvituskuvan talo sisältää lisävalintoja

Jasmiini
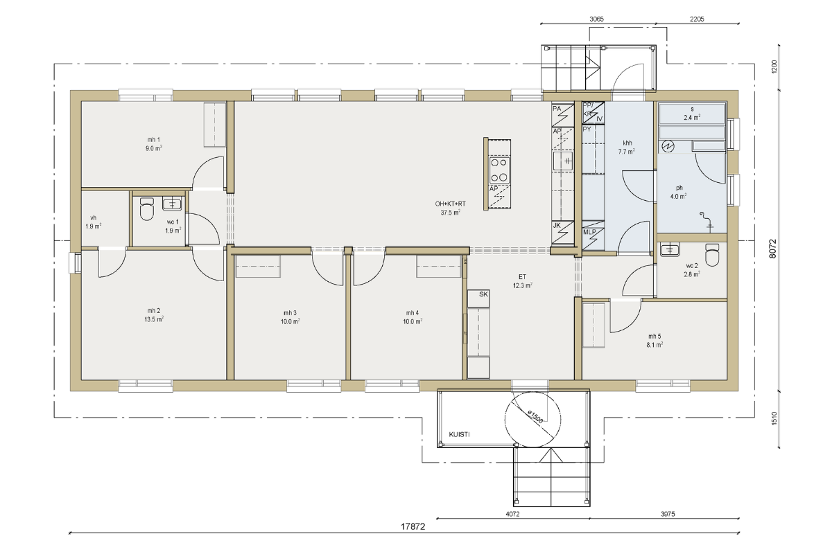
6h, keittiö, khh, sauna
Huoneistoala: 129 m²
Kerrosala: 145 m²
Jasmiini on saumaton talomalli ja se kuuluu NopsaKoti-mallistoomme. Jasmiini on erinomainen vaihtoehto myös suuremmalle perheelle. Tässä talomallissa on viisi makuuhuonetta, kaksi wc:tä, tilava eteinen, sauna ja kodinhoitohuone. Yhtenäinen keittiö-olohuonetila puolestaan tarjoaa perheelle yhteisen paikan, jossa on mukava viettää aikaa niin arjessa kuin juhlassa.
Toimitus muuttovalmiina.
TALOMALLIN HINTA
Muuttovalmiina alkaen 234 000 €
Hinta sisältää maalämmön sekä maaviileän.
Hintaan ei sisälly toimituskulut.
Kysy lisää!
Jokainen pohjakuva voidaan toteuttaa peilikuvana. Tutustu lisää talomalliemme muokattavuuteen täällä.

Harjakatto

Murrettu harjakatto

Pulpettikatto

Epäsymmetrinen harjakatto
Harjakatto kuuluu Muurametalojen talotoimitukseen vakiona kaikissa malleissamme. Lisävalintana on mahdollista ottaa talopakettiin joko murrettu harjakatto, epäsymmetrinen harjakatto tai pulpettikatto. Lisävalintaiset katot ovat saatavilla vain yhden kerroksen taloihin.
Tähän talomalliin on saatavilla useita erilaisia julkisivuverhoiluja ja lämmönlähteeksi voit valita esimerkiksi maalämmön tai poistoilmalämpöpumpun. Terassin ja tulisijan sijainti on myös vapaasti valittavissa oman toiveesi mukaan. Tutustu lisää talomalliemme yksilöinti- ja muokkausmahdollisuuksiin talomallien muokattavuus ja lisävalinnat osiostamme!
Muuttovalmiin kodin sisustuksessa, pintamateriaaleissa ja kiintokalusteissa vaihtoehtoja on myöskin runsaasti tarjolla. Sisustussuunnittelijamme palvelut sisustuspalavereineen kuuluvat muuttovalmiin kodin hintaamme, joten saat varmasti talon sisustuksesta itsesi näköisen.
Lattiamateriaaleihin, keittiön suunnitteluun ja moneen muuhun asiaan voit perehtyä tarkemmin talopaketin sisustus-osiossamme!
RAKENNETAAN YHDESSÄ SINULLE SOPIVA KOKONAISUUS!
Alue-edustajamme auttavat sinua kokonaisuuden rakentamisessa. Tapaamisen jälkeen sinulla on tiedossa tarkka hinta talopaketille sekä budjettilaskelma koko rakennusprojektille. Jätä yhteydenottopyyntö, niin olemme sinuun yhteydessä.


