Kuvituskuvan talo sisältää lisävalintoja

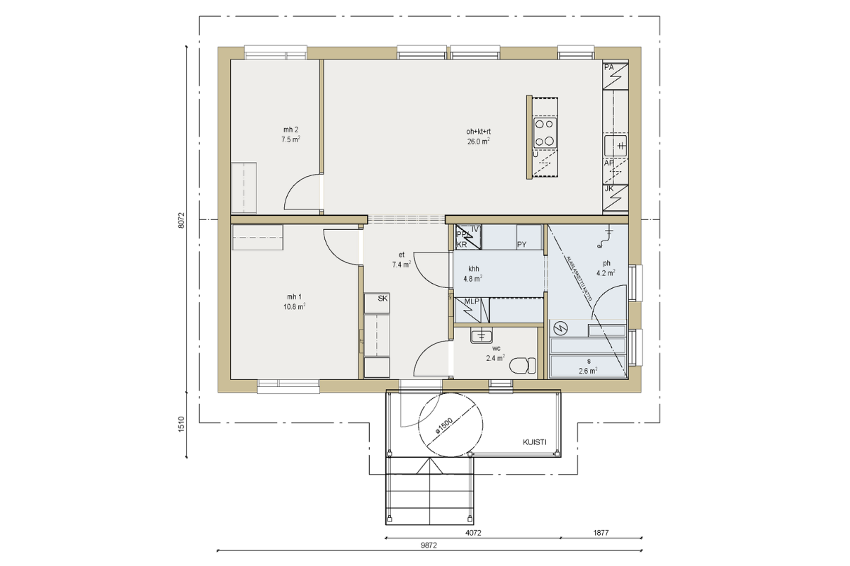
Pioni
3h, keittiö, khh, sauna
Huoneistoala: 69 m²
Kerrosala: 80 m²
Pioni on saumaton talomalli ja se kuuluu NopsaKoti-mallistoomme. Tässä kahden makuuhuoneen kodissa kaikki neliöt on hyödynnetty tehokkaasti. Avara olohuone, keittiö ja ruokailutila muodostavat yhtenäisen ja valoisan tilan, jossa voi viettää aikaa yhdessä perheen tai ystävien kanssa. Myös kodinhoitohuone, pesuhuone ja sauna ovat kätevästi sijoitettu talon pohjaratkaisuun. Käytännöllisyyttä lisäävät erillinen WC sekä tilava eteinen säilytysratkaisuineen.
Toimitus muuttovalmiina.
TALOMALLIN HINTA
Muuttovalmiina alkaen 170 000 €
Hinta sisältää maalämmön sekä maaviileän.
Hintaan ei sisälly toimituskulut.
Kysy lisää!
Jokainen pohjakuva voidaan toteuttaa peilikuvana. Tutustu lisää talomalliemme muokattavuuteen täällä.

Harjakatto

Murrettu harjakatto

Pulpettikatto

Epäsymmetrinen harjakatto
Harjakatto kuuluu Muurametalojen talotoimitukseen vakiona kaikissa malleissamme. Lisävalintana on mahdollista ottaa talopakettiin joko murrettu harjakatto, epäsymmetrinen harjakatto tai pulpettikatto. Lisävalintaiset katot ovat saatavilla vain yhden kerroksen taloihin.
Tähän talomalliin on saatavilla useita erilaisia julkisivuverhoiluja ja lämmönlähteeksi voit valita esimerkiksi maalämmön tai poistoilmalämpöpumpun. Terassin ja tulisijan sijainti on myös vapaasti valittavissa oman toiveesi mukaan. Tutustu lisää talomalliemme yksilöinti- ja muokkausmahdollisuuksiin talomallien muokattavuus ja lisävalinnat osiostamme!
Muuttovalmiin kodin sisustuksessa, pintamateriaaleissa ja kiintokalusteissa vaihtoehtoja on myöskin runsaasti tarjolla. Sisustussuunnittelijamme palvelut sisustuspalavereineen kuuluvat muuttovalmiin kodin hintaamme, joten saat varmasti talon sisustuksesta itsesi näköisen.
Lattiamateriaaleihin, keittiön suunnitteluun ja moneen muuhun asiaan voit perehtyä tarkemmin talopaketin sisustus-osiossamme!
RAKENNETAAN YHDESSÄ SINULLE SOPIVA KOKONAISUUS!
Alue-edustajamme auttavat sinua kokonaisuuden rakentamisessa. Tapaamisen jälkeen sinulla on tiedossa tarkka hinta talopaketille sekä budjettilaskelma koko rakennusprojektille. Jätä yhteydenottopyyntö, niin olemme sinuun yhteydessä.


