Kuvituskuvan talo sisältää lisävalintoja

Tuomi
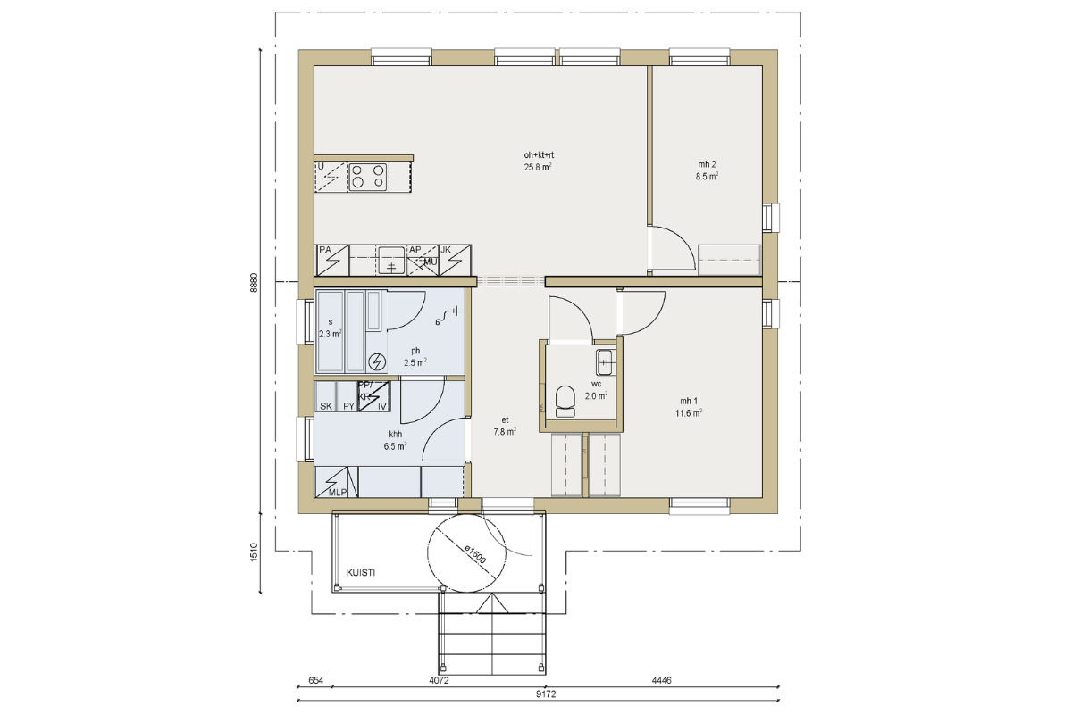
3h, keittiö, khh, sauna
Huoneistoala: 71 m²
Kerrosala: 81 m²
Tuomi on saumaton talomalli ja se kuuluu NopsaKoti-mallistoomme. Tuomi-talossa yhdistyvät toimiva pohjaratkaisu, valoisuus ja asumismukavuus. Kodin sydän on avara ja valoisa olohuone-keittiöalue. Kaksi makuuhuonetta tarjoavat puolestaan rauhalliset tilat perheenjäsenille tai esimerkiksi etätyöpisteelle. Kodinhoitohuone tuo lisää säilytystilaa ja pesuhuoneesta erillinen WC lisää arjen sujuvuutta. Tämä kodikas kahden moduulin talo sopii erinomaisesti pienelle perheelle tai vaikkapa pariskunnalle.
Toimitus muuttovalmiina.
TALOMALLIN HINTA
Muuttovalmiina alkaen 172 000 €
Hinta sisältää maalämmön sekä maaviileän.
Hintaan ei sisälly toimituskulut.
Kysy lisää!
Jokainen pohjakuva voidaan toteuttaa peilikuvana. Tutustu lisää talomalliemme muokattavuuteen täällä.

Harjakatto

Murrettu harjakatto

Pulpettikatto

Epäsymmetrinen harjakatto
Harjakatto kuuluu Muurametalojen talotoimitukseen vakiona kaikissa malleissamme. Lisävalintana on mahdollista ottaa talopakettiin joko murrettu harjakatto, epäsymmetrinen harjakatto tai pulpettikatto. Lisävalintaiset katot ovat saatavilla vain yhden kerroksen taloihin.
Tähän talomalliin on saatavilla useita erilaisia julkisivuverhoiluja ja lämmönlähteeksi voit valita esimerkiksi maalämmön tai poistoilmalämpöpumpun. Terassin ja tulisijan sijainti on myös vapaasti valittavissa oman toiveesi mukaan. Tutustu lisää talomalliemme yksilöinti- ja muokkausmahdollisuuksiin talomallien muokattavuus ja lisävalinnat osiostamme!
Muuttovalmiin kodin sisustuksessa, pintamateriaaleissa ja kiintokalusteissa vaihtoehtoja on myöskin runsaasti tarjolla. Sisustussuunnittelijamme palvelut sisustuspalavereineen kuuluvat muuttovalmiin kodin hintaamme, joten saat varmasti talon sisustuksesta itsesi näköisen.
Lattiamateriaaleihin, keittiön suunnitteluun ja moneen muuhun asiaan voit perehtyä tarkemmin talopaketin sisustus-osiossamme!
RAKENNETAAN YHDESSÄ SINULLE SOPIVA KOKONAISUUS!
Alue-edustajamme auttavat sinua kokonaisuuden rakentamisessa. Tapaamisen jälkeen sinulla on tiedossa tarkka hinta talopaketille sekä budjettilaskelma koko rakennusprojektille. Jätä yhteydenottopyyntö, niin olemme sinuun yhteydessä.


